Energimærke

A

2020

Cafe

Skærvestræde 37 , 2640 Hedehusene

Cafe - Bageri - Eatery til leje på Skærvestræde 37, Nærheden, 2640 Hedehusene

Samlet areal

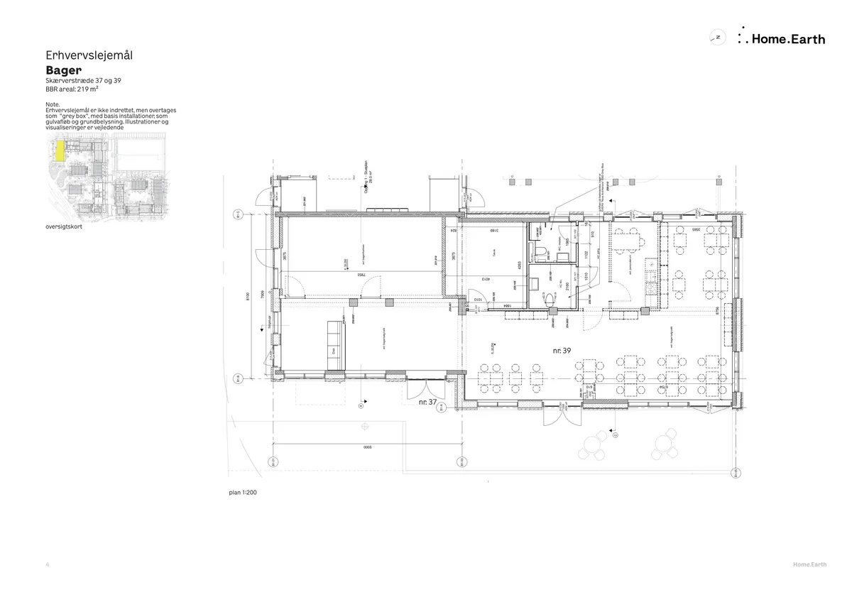
219m2

Heraf 0 m2
sekundært areal

Leje pr. mdr.

31.000 kr

Afståelse

-

Driftsomkostninger/md

-

Forbipasserende pr. dag

Forbipasserende pr. dag

2.918

Regionaltog

Regionaltog

139 meter

Flest med årlig indkomst

Flest med årlig indkomst

500.000+

Befolkningstal

Befolkningstal

16.543

Se detaljeret data

Et unikt mulighed til dig, der vil være en del af en aktiv og fremtidssikker bydel Velkommen til Nærheden – en visionær og bæredygtig byudvikling i Hedehusene, kun 25 minutter fra København. Her bygges en moderne og levende bydel, hvor fællesskab, grønne områder og aktiv livsstil går hånd i hånd. Med tusindvis af nye beboere og et stærkt lokalt engagement, er behovet for fællesskab - og sociale mødesteder i rivende udvikling. Drømmer du om at åbne et Cafe, bageri, restaurant eller moderne eatery med fokus på kvalitet, gastronomi og værtskab? Så er dette din chance. Vi udbyder nu et 219 m² stort erhvervslejemål i Nærheden – kun 200 meter fra Hedehusene Station og med direkte adgang til et voksende og engageret lokalmiljø. Lejemålet er ideelt placeret i stueplan lige overfor stationen og kan tilpasses dine behov. 🔹 + 5.000 beboere – og på sigt ca. 8.000 beboere! 🔹 Et unikt kundegrundlag af unge, aktive og børnefamilier 🔹 En moderne, bæredygtig bydel med fokus på bevægelse 🔹 Let tilgængelighed for både lokale og pendlere Lejemålet overtages som white box med mulighed for at sætte dit eget præg – og med gode lejevilkår og fleksibel indretning. 👉 Tag springet og bliv en del af Nærhedens aktive hjerte – kontakt os i dag for en fremvisning og en snak om dine muligheder.*

Læs mere

Faciliteter

Kontraktforhold

Overtagelsestilstand

Efter aftale

Fraflytningstilstand

Efter aftale

Opsigelsesvarsel

6 måneder

Uopsigelighed

36 måneder

Fremlejeret

Nej

Afståelsesret

Ja

Depositum

6 måneder

Lejeregulering

NPI

Vedligeholdelse

Efter aftale

Udspecificerede info

m2MånedligtÅrligt
Leje1.698,63 kr.31.000 kr.372.000 kr.
Driftsomkostninger- kr.- kr.- kr.
Acconto- kr.- kr.- kr.
Total1.698,63 kr.31.000 kr.372.000 kr.

Hvordan aflæses det?
I bjælken længst til venstre ses udgifter ifbm. lejemålet. Mod højre bliver denne udgift opdelt i M2 (Prisen pr. m2 / året), Månedligt (Prisen pr Måned) og Årligt (Prisen pr år).

Areal
Primær219 m2
Sekundær- m2
Samlet219 m2
Grundareal- m2
Ovenstånde inddikere fordelingen af lokalets m2 i hhv. primære, sekundære og grundareal m2.

Statistik

Gennemsnitlig trafik i området

Området er 500x500 meter omkring adressen.

Befolkningsantal i Hedehusene

16.543

Årlig indtægtsfordeling i Hedehusene

I 1000 kr.

Aldersfordeling i Hedehusene

Angivet i %

Hold musen over eller tryk for at se værdierne

Afstand til

Stoppested

Hedehusene St. (togbus)

Stoppested

88 meter

Regionaltog

Hedehusene St.

Regionaltog

139 meter

Supermarked

365discount

Supermarked

162 meter

Skole

læringshuset

Skole

481 meter

Idrætshal

Hedehushallen

Idrætshal

646 meter

Fodboldbane

Hedehusene Skoles Fodboldbane

Fodboldbane

811 meter

Motorvej

21 - Holbækmotorvejen

Motorvej

1,3 km

Svømmehal

Fløng Svømmehal

Svømmehal

2,0 km

Sø

3,0 km

S-tog

Høje Taastrup St.

S-tog

4,5 km

Skov

Himmelev Skov

Skov

4,7 km

Oldtidsminder og ruiner

Hvedshøj Gravhøj

Oldtidsminder og ruiner

5,3 km

Hospital

Sjællands Universitetshospital, Roskilde

Hospital

6,9 km

Monumenter

Hestetorvet & Roskildekrukkerne

Monumenter

6,9 km

Bygningsværker og Bymiljøer

Roskilde Station

Bygningsværker og Bymiljøer

7,0 km

Kyst

Kyst

7,3 km

Naturområder

Hundeskove i Roskilde

Naturområder

7,3 km

Haver og Parker

Byparken

Haver og Parker

7,4 km

Forlystelsesparker

Dinos Legeland

Forlystelsesparker

9,1 km

Letbane

Vallensbæk St. (Letbane)

Letbane

12,0 km

Metro

Vanløse St. (Metro)

Metro

19,0 km

Zoo'er & dyreparker

Zoologisk Have

Zoo'er & dyreparker

20,6 km

Lufthavn

Københavns Lufthavn, Kastrup

Lufthavn

28,5 km

Alternative anvendelsesmuligheder

Restaurant
Take-away