Energimærke

D

Kontor

Kongevejen 61 , 2800 Kongens Lyngby

Kontor til leje på Kongevejen 61, 2800 Kongens Lyngby

Samlet areal

114m2

Heraf 0 m2
sekundært areal

Leje pr. mdr.

13.400 kr

Afståelse

-

Driftsomkostninger/md

400 kr

Stoppested

Stoppested

48 meter

Facilitet

Facilitet

Privat parkering

Regionaltog

Regionaltog

427 meter

S-tog

S-tog

506 meter

Se detaljeret data

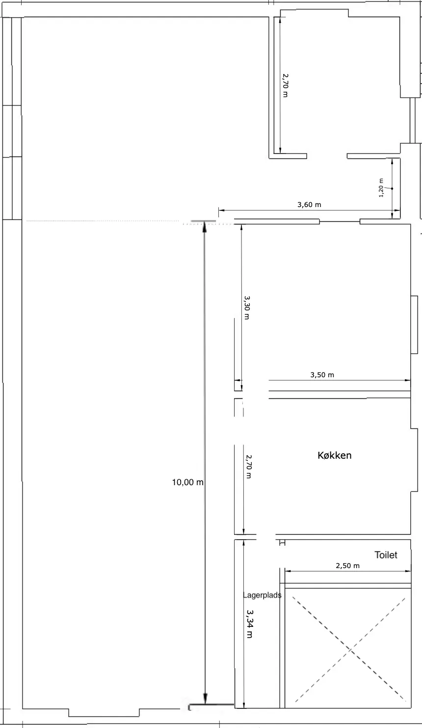
Erhvervslejemål – kontor / kreativ produktion (114 m²) Lyst og fleksibelt erhvervslejemål velegnet til kontor, atelier eller kreativ produktion. Rummet har en god, åben atmosfære med mulighed for forskellige indretninger afhængigt af behov. Indretning: Stort hovedrum ca. 65 m² Glasaflukket rum ca. 10 m² (møderum/kontor) Separat rum med vindue ca. 16 m² Køkken, toilet og opbevaringsområde Der er mulighed for at benytte dele af den fælles have, hvilket giver ekstra rum og fleksibilitet i hverdagen. Et par parkeringspladser er inkluderet. Kælderplads kan tilvælges efter behov. Lejemålet overtages som det er (“as is”). Eventuelle forbedringer eller tilpasninger kan aftales nærmere. Vi er primært på udkig efter en stabil kontor, atelier- eller produktionslejer, men er også åbne for et stærkt pop-up koncept ved minimum 6 måneders leje.

Læs mere

Faciliteter

Kontraktforhold

Overtagelsestilstand

Efter aftale

Fraflytningstilstand

Efter aftale

Opsigelsesvarsel

3 måneder

Uopsigelighed

9 måneder

Fremlejeret

Nej

Afståelsesret

Nej

Depositum

3 måneder

Lejeregulering

NPI

Vedligeholdelse

Efter aftale

Udspecificerede info

m2MånedligtÅrligt
Leje1.410,53 kr.13.400 kr.160.800 kr.
Driftsomkostninger42,11 kr.400 kr.4.800 kr.
Acconto168,42 kr.1.600 kr.19.200 kr.
Total1.621,05 kr.15.400 kr.184.800 kr.

Hvordan aflæses det?
I bjælken længst til venstre ses udgifter ifbm. lejemålet. Mod højre bliver denne udgift opdelt i M2 (Prisen pr. m2 / året), Månedligt (Prisen pr Måned) og Årligt (Prisen pr år).

Areal
Primær114 m2
Sekundær- m2
Samlet114 m2
Grundareal- m2
Ovenstånde inddikere fordelingen af lokalets m2 i hhv. primære, sekundære og grundareal m2.

Statistik

Gennemsnitlig trafik i området

Området er 500x500 meter omkring adressen.

Befolkningsantal i Kongens Lyngby

43.518

Årlig indtægtsfordeling i Kongens Lyngby

I 1000 kr.

Aldersfordeling i Kongens Lyngby

Angivet i %

Hold musen over eller tryk for at se værdierne

Afstand til

Stoppested

Kongevejen (Skovbrynet)

Stoppested

48 meter

Skole

Sorgenfriskolen

Skole

52 meter

Motorvej

201 - Lyngby Omfartsvej

Motorvej

427 meter

Regionaltog

Fuglevad St.

Regionaltog

427 meter

S-tog

Sorgenfri St.

S-tog

506 meter

Supermarked

Lidl

Supermarked

509 meter

Fodboldbane

Virumgård kunstgræsbane

Fodboldbane

652 meter

Lyngby Sø

Sø

672 meter

Skov

Lyngby Åmose

Skov

783 meter

Svømmehal

Lyngby Svømmehal

Svømmehal

1,1 km

Idrætshal

Hummeltofte Hallen

Idrætshal

1,1 km

Bygningsværker og Bymiljøer

Bagsværd Kirke

Bygningsværker og Bymiljøer

3,8 km

Haver og Parker

Bernstorff Slot

Haver og Parker

5,1 km

Forlystelsesparker

Bakken

Forlystelsesparker

5,7 km

Hospital

Gentofte Hospital

Hospital

6,1 km

Kyst

Kyst

6,8 km

Naturområder

Furesøbadet

Naturområder

6,9 km

Letbane

Rødovre Nord (Letbane)

Letbane

9,5 km

Metro

Vibenshus Runddel St. (Metro)

Metro

9,8 km

Monumenter

Carl Nielsen statuen

Monumenter

12,1 km

Zoo'er & dyreparker

Zoologisk Have

Zoo'er & dyreparker

12,6 km

Oldtidsminder og ruiner

Hjortspringbåden

Oldtidsminder og ruiner

13,3 km

Lufthavn

Københavns Lufthavn, Kastrup

Lufthavn

19,9 km

Alternative anvendelsesmuligheder

Butik
Pop-up
Lager